Appartamento in affitto a Firenze zona Oberdan-gioberti (FI)
- Civile abitazione
- 85 mq
- 2
- 2
Riferimento: 1/0013
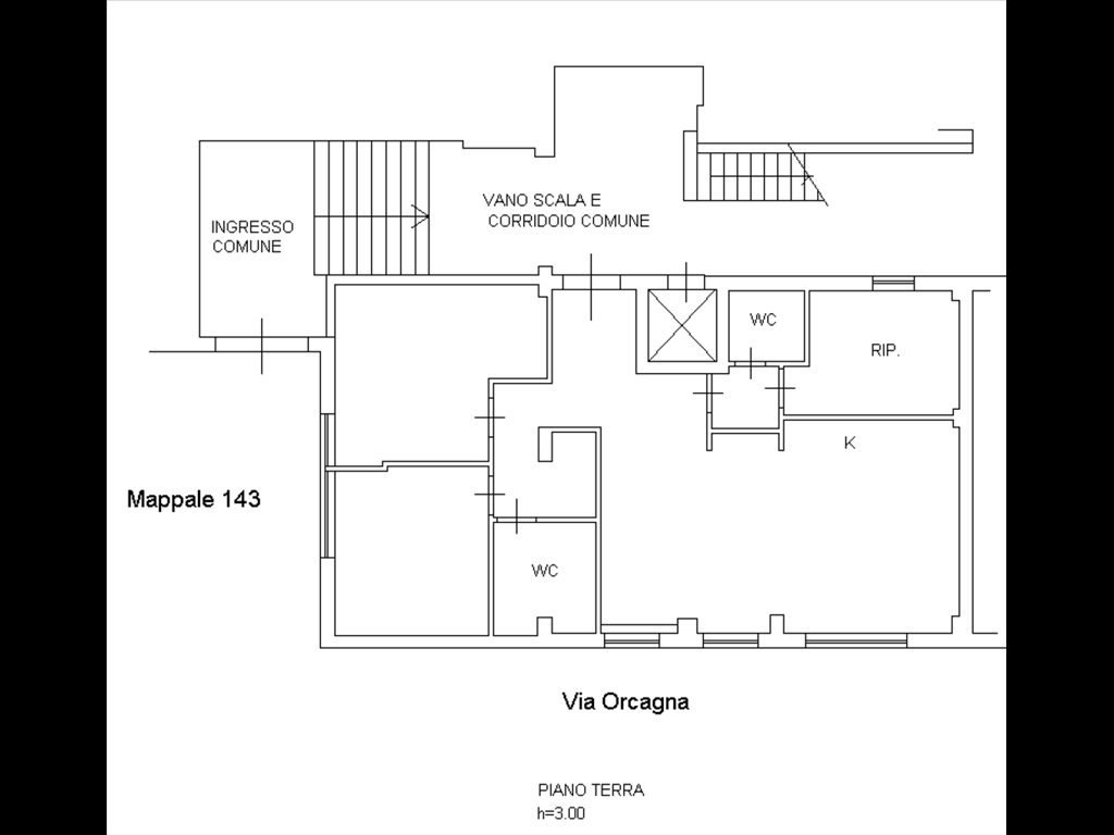
Via Orcagna, appartamento posto al piano terra rialzato di un condominio signorile in perfette condizioni, l'appartamento è in ottime condizioni restaurato circa 10 anni fà, composto da ingresso, soggiorno doppio con angolo cottura con cucina di ottima qualità, due camere, doppi servizi, ampio vano ripostiglio lavanderia, soffitti alti mt 3,00, impianto di climatizzazione caldo freddo, tapparelle elettriche riscaldamento a pavimento.Completamente arredato.Affittasi anche a società.
Caratteristiche principali
- Immobile in affitto: € 1.700
- Posti auto: no
- Classe Energ.: D - IPE: 158,89
- Giardino: no
- 85 mq - Vani: 4
- Spese condominiali: 200 mese
- Ingresso: 1
- Soggiorno: 1
- Cucina: 1
- Camere: 2
- Servizi: 2
- Studio: no
- Ripostiglio: 1
- Cantina: no
- Balconi: no
- Terrazzi: no
- Piano: rialzato
- Piani stabile: 5
- Ascensore: si
- Sottotetto: no
- Posto auto: no
- Giardino /resede: no
- Riscaldamento: centralizzato
- Imp. elettrico: nd
- Spese condominiali: 200 mese
- Anno costruzione: nd
- Stato proprietà: libero
- Classe Energetica: D
- IPE: 158,89
Zona ubicazione immobile
Richiesta informazioni
Immobiliare Nesi Firenze
- Via della Fonderia 65/B - Firenze
- info@immobiliarenesi.it
- studionesi59@gmail.com
- +39 335.5764607 Marco
- 335.6831618 Giovanni




















